Arts & Crafts Villa, Suffolk

Having worked closely with our US based clients we secured consent for a scheme to restore and extend an arts and crafts house, and to rebuild a late 20th century side wing in a more appropriate style. Externally our alterations had to sit respectfully alongside the compact form of the main house, and contribute positively to the Conservation Area around it.

Internally, the layout of principal rooms was respected, and elsewhere we were able to improve the flow of accommodation by repositioning entry points and by the introduction of a secondary stair. A new hall, kitchen, and dining area have been formed, with spaces being separated by glazed timber screens. The first floor, which piecemeal alterations had left as wasteful layout of twisting corridors lined with wardrobes, was re-ordered to provide a master bedroom, bathroom and study – all grouped around the principal stair – with guest spaces planned around a new back stair.

The original house was designed by the architect Frank Jennings (1877–1961), a talented designer who worked extensively within Walberswick, leaving the village with a fine architectural legacy. Jennings’ work, which incorporated salvaged historic structure and carvings, was delightfully eccentric and skilfully detailed. We are pleased to have worked on the majority of his Walberswick houses.

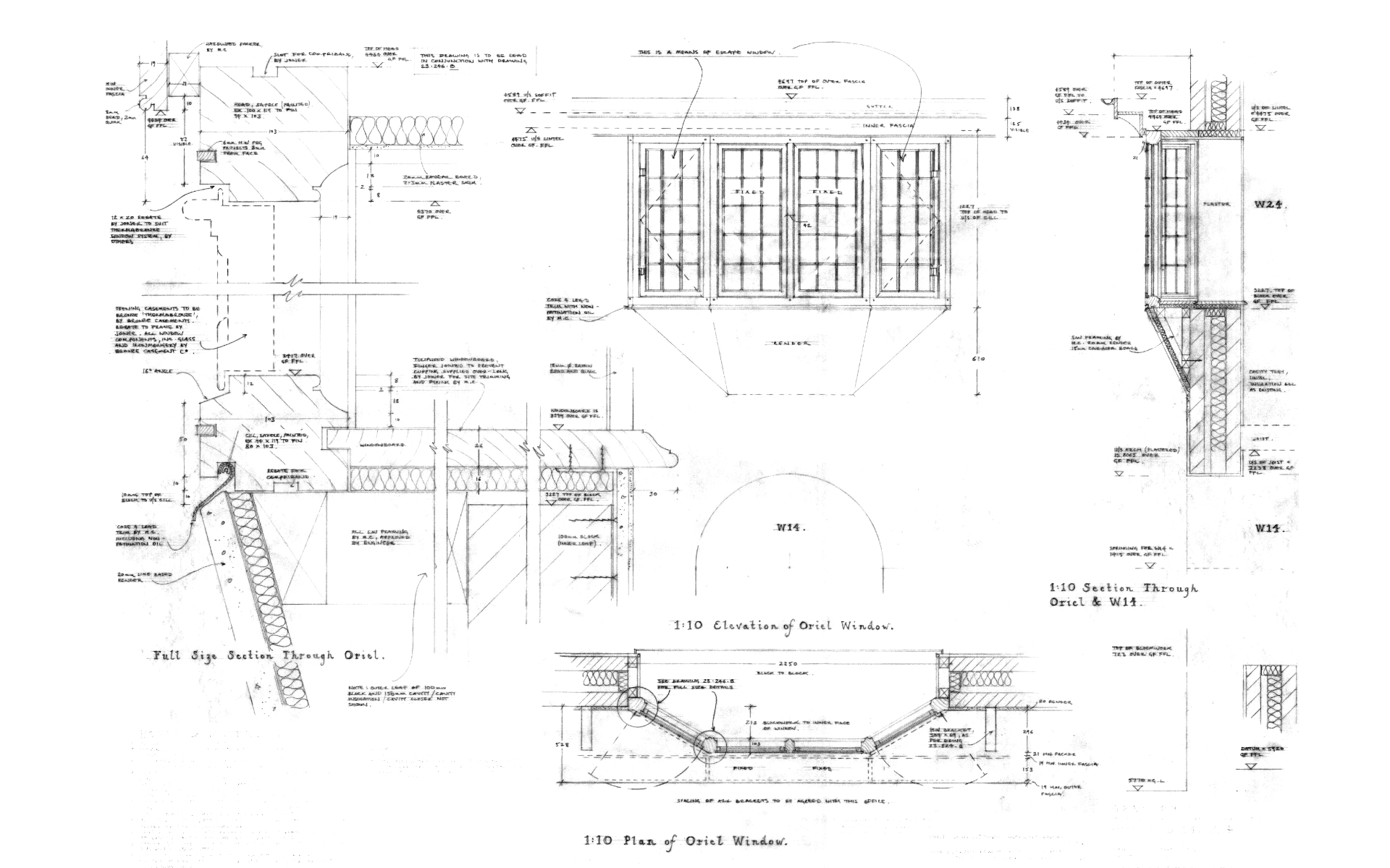
As part of our full project management role we have produced construction details, designed all doors, windows, skirtings, fully detailed the kitchen – in fact all the joinery has been produced by us. Everything is being put together with skill and precision by the Blue Door Development Company, and we are delighted to be working with the talented Minneapolis based Conlin Rudd Interior Design.

A landscape proposal and a design for a Garden Loggia have recently been approved by the Local Authority, the construction of which will follow on from the main house early next year.

Location:

Suffolk

Date:

2024-present

Services:

Pre-application, Planning, Building Control, Tender process and full project management